Развернуть карту

Продажа земельного участка, Клин, Клинский район, 62600000 руб.

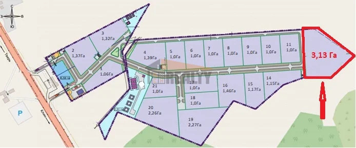
  • Категория назначения землепользованияЗП
  • Общая площадь, соток310.0
  • ЭлектроснабжениеОбеспечено действующим договором с электросбытовой компанией
  • Газоснабжениегаз низкого давления на участке

Арт.
Продается земельный участок промышленного назначения на территории нового современного Индустриального парка. Общая площадь 3,13 Га. Возможно приобретение от 1Га и более, уточняйте наличие участков по телефону. Все коммуникации проведены. Газ по границе. Электрическая мощность 300 кВт.
Основные характеристики инфраструктуры парка:ТРАНСПОРТНАЯ ИНФРАСТРУКТУРА. Территория Индустриального парка, расположена частично в черте населенного пункта село Спас-Заулок, вдоль правой стороны федеральной трассы М-10 «Россия», а на севере с граничит с Конаковским районом Тверской области. Расстояние до города Клин от площадки индустриального парка составляет около 18 км, до Твери около 72 км. Рядом с парком расположена остановка общественного транспорта «Спас-Заулок». Территория парка и подъездные пути будут заасфальтированы.ЭЛЕКТРОСНАБЖЕНИЕ. Электропитание от двух блочных комплектных трансформаторных подстанций с двумя силовыми трансформаторами мощностью 3200 кВА, напряжение 10/0.4кВ каждый. Максимальная предельная мощность электроснабжении – 5,004 МВт.СЕТИ СВЯЗИ. На территории предусмотрена прокладка оптоволоконной сети: Интернет, телефонных линий в коридорах инженерных коммуникаций вдоль магистральных автодорог индустриального парка от внутренней АТС. Резиденты самостоятельно определяют оператора связи и интернет-провайдера, которые впоследствии обеспечивают инженерно-техническое подключение объектов резидентов.ГАЗОСНАБЖЕНИЕ. На территории Индустриального парка предусмотрена разветвленная система газоснабжения для обеспечения автономных источников теплоснабжения резидентов, а также технологических процессов, для которых используется природный газ. Потребность в газоснабжении – 6 446 м3/сутки.ТЕПЛОСНАБЖЕНИЕ. К участкам резидентов подведена газораспределительная сеть, решение о проектировании объектов теплоснабжения принимает резидент. Природный газ используется для подготовки теплоносителей в котельных и установок технологического назначения, которые могут быть адаптированы для работы с различными видами топлива: твердые виды топлива, дизельное топливо и т.д. ВОДОСНАБЖЕНИЕ. Источником водоснабжения Индустриального парка является проектируемый водозабор. Общая мощность водоснабжения на хозяйственно-бытовые и противопожарные нужды – 1 373 куб.м./сутки. На территории индустриального парка запроектированы следующие системы: совмещенный хозяйственно-бытовой и противопожарный водопровод.ВОДООТВЕДЕНИЕ. Канализационная сеть проектируется самотечная с подключением к проектируемым локальным очистным сооружениям. Общая мощность водоотведения для хозяйственно-бытовых нужд – 1 373 куб.м./сутки.

Оперативный показ! Все подробности по телефону.



62600000 руб. | 948368 $ | 831101 €

Захарова Зинаида Владимировна

+7 (495) 532-41-14

Добавлено: 25 Nov 2025, 22:50:01